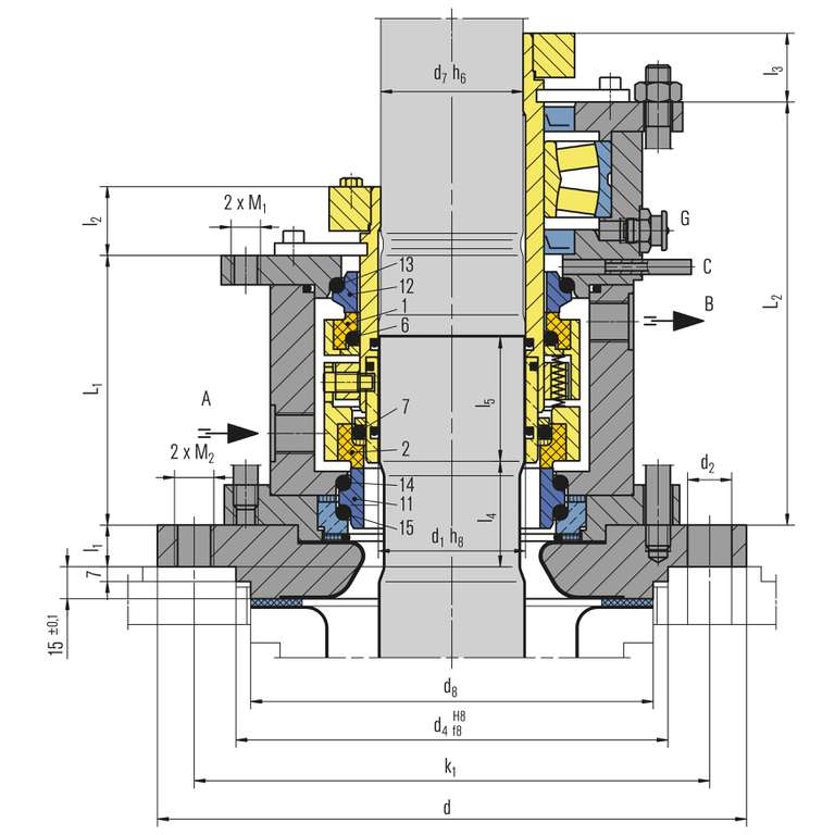
ItemDescription
1Seal face, atmosphere side
2Seal face, product side
6, 7, 13, 14, 15O-Ring
11Seat, product side
12Seat, atmosphere side
Flange connections acc. to DIN 28137 T2
for nominal diameters 125 ... 161.

M461K

Features

  • Cartridge double seal for top entry drives
  • For glass-lined vessels
  • Liquid lubricated
  • Self-closing on product side
  • Unbalanced
  • Independent of direction of rotation
  • Multiple springs rotating

Advantages

  • Ready-to-fit and factory-tested unit
  • Available with or without bearing
  • Suitable for standardizations
  • Seal can be applied at higher pressure and rotating speed than specified by DIN
  • The seal can be lifted off the glass-lined flange as a complete cartridge. The sensitive glass lined basic flange remains mounted on the vessel.
  • ATEX certification on request

Operating range

Shaft diameter:
d1 = 40 ... 160 mm (1.57" ... 6.30")
Pressure:
p1 = vacuum ... 16 bar (232 PSI),
p3 = max. 18 bar (261 PSI)
Temperature:
t1 = -40 °C ... +200 (250*) °C
(-40 °F ... +392 (482*) °F)
Sliding velocity:
vg = 0 ... 5 m/s (0 ... 16 ft/s)

For applications beyond this range, please inquire.

* with cooling flange

! It should be noted that the extremal values of each operating parameter cannot be applied at the same time because of their interaction.

Materials

Seal faces: Carbon graphite or Silicon carbide, FDA conform
Seats: Silicon carbide, FDA conform
Secondary seals and metallic parts acc. to application and customers' requirement.

Standards and approvals

  • FDA
  • ATEX
  • DIN 28138 (mechanical seals for agitator shafts)
  • DIN 28136 T3 (for glass-lined vessels)
  • DIN 28137 T2 (flange connection for glass-lined vessels)
  • DIN 28159 (shaft end for glass-lined vessels)

Notes

Options:
  • Cooling resp. heating flange
  • Leakage drain resp. flush

Recommended piping plans




Product variants


M461KL-D
The variant with integrated floating bearing.

M56K(L)
Double seal without/with floating bearing
for PN 25 (Special seal on request.)

M491KL
The series for unstepped shafts (all diameters) and connection diamentions not covered by DIN. Customized design or e.g. different drives (torque transmissions) are available.

Similar products

ERB

  • Cartridge unit
  • Double seal with integrated bearing
  • Unbalanced
  • Independent of direction of rotation

HS-D

  • For top entry drives
  • Double seal
  • Unbalanced
  • Independent of direction of rotation
  • Multiple springs rotating
  • Liquid-lubricated
  • Cartridge unit

HSH(L)U-D

  • For bottom entry drives
  • Double seal
  • Balanced
  • Independent of direction of rotation
  • Multiple springs rotating
  • Liquid-lubricated
  • Cartridge unit
Contact

Inquire about individual solutions

We develop and produce customer-specific special and individual solutions for every application.

Inquire now Discover reference projects
Back to the overview